º Los Alcázares
Lunes a viernes 09:30 a 14:00 y 16:00 a 19:00
Lunes a viernes 09:30 a 14:00 y 16:00 a 19:00
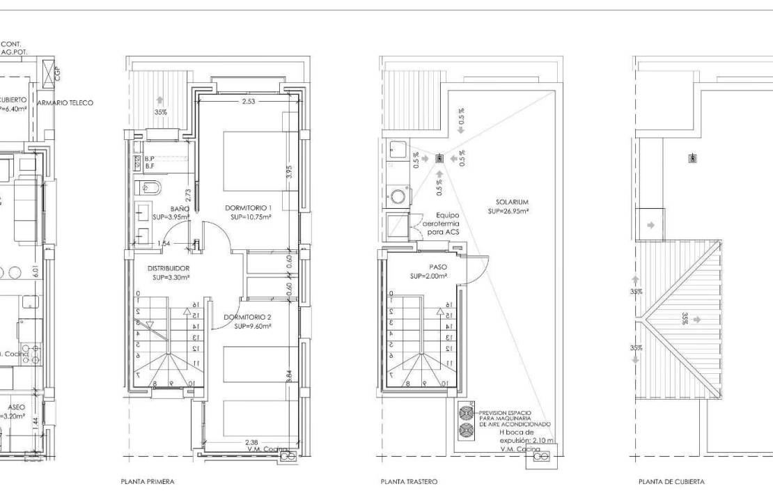
Te presentamos este exclusivo dúplex adosado en Santa Rosalía Pueblo, una vivienda diseñada para quienes valoran la funcionalidad y el confort, en un entorno tranquilo y cuidado próximo al mar.~La vivienda se distribuye en varias plantas, ofreciendo una perfecta separación entre zona de día y de descanso. En la planta baja, nos recibe un porche cubierto, perfecto para relajarte al aire libre, y al entrar un luminoso salón-comedor con cocina integrada, ideal para el día a día, un patio interior y un baño. En la planta superior se ubican los dos dormitorios, junto a un baño completo. Y en la última planta, el residencial cuenta con opciones de viviendas con un tercer dormitorio, y todas cuentan con, un espectacular solárium privado, un espacio versátil donde podrás crear tu zona chill out, con cocina de verano, perfecta para tomar el sol o disfrutar de veladas únicas durante todo el año. ~Además, cuenta con plaza de garaje y piscina comunitaria, acabados de alta calidad, puerta de seguridad, doble acristalamiento, cocina equipada, preinstalación de aire acondicionado y armarios empotrados.~Ubicado en Santa Rosalía Pueblo, una zona tranquila y perfectamente conectada, a escasos 10 minutos en coche de las magníficas playas de la Costa Cálida, ideal tanto para vivir todo el año o residencia vacacional.~~

Esta información que se proporciona aquí está sujeta a errores y no forma parte de ningún contrato. La oferta se puede cambiar o retirar sin previo aviso. Los precios no incluyen los costes de compra